0
Retour

Créteil (94000)
Restaurant dans demeure de charme

Prix
du bien
2 625 000 €
réf : 202200230

01
Général

KIEC (king Immobilier Entreprise et Commerce) vous propose les murs et le fond de commerce d'un restaurant installés dans une demeure de charme inscrit dans un domaine dont le cadre est à la fois calme, romantique et bucolique sur les bords de Marne. Ce bien se compose, dans un parc de 1 500 m², d'une bâtisse de 436 m² comprenant une partie restauration, une partie pouvant être aménagée en chambres d'hôtes ou hotellerie et d'un appartement privatif.

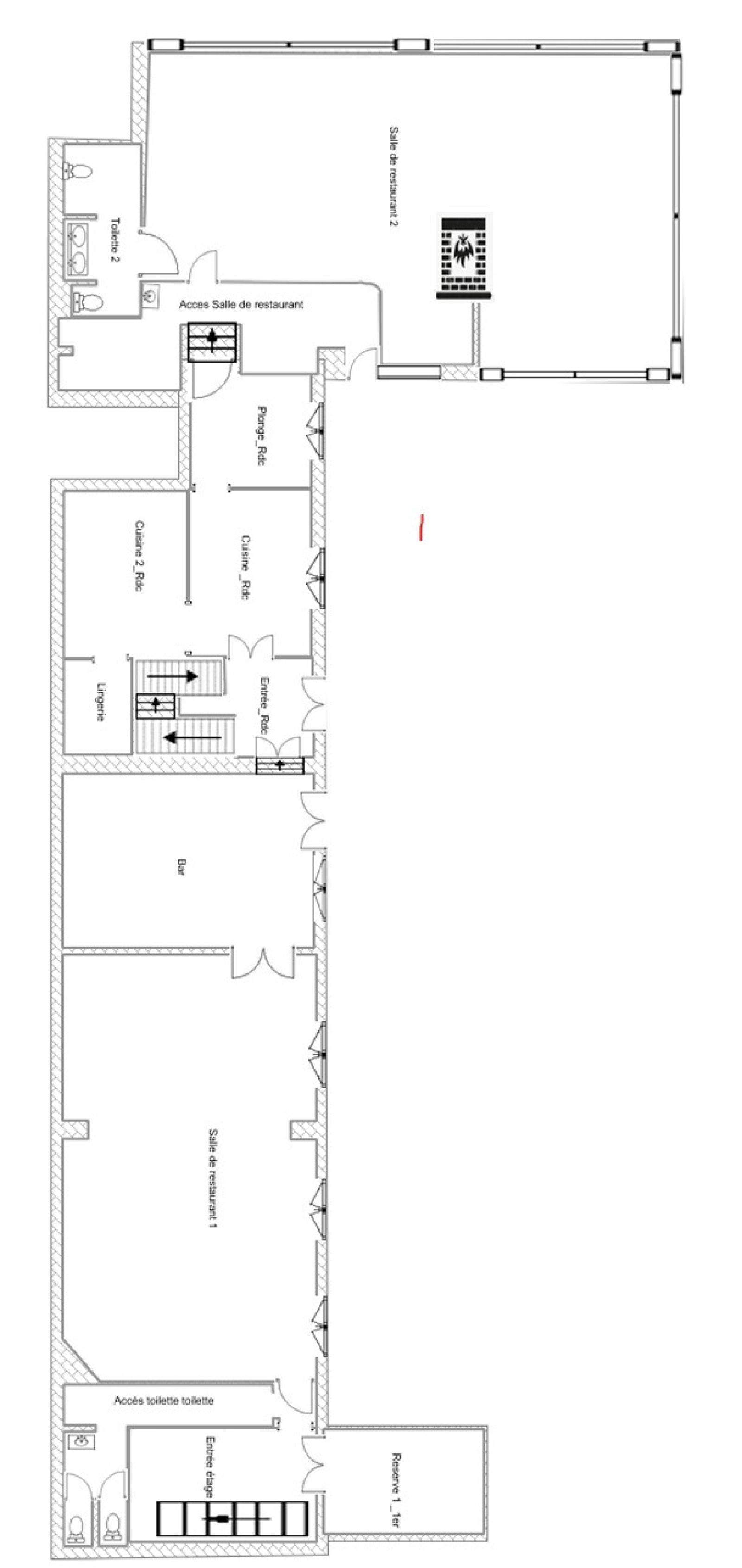
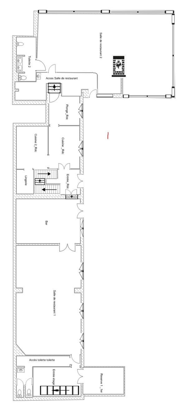
La partie restauration, titulaire de la licence IV, dispose à l'intérieur de la demeure d'une 1ere salle de réception de 63 m² dans une ambiance feutrée avec une cheminée accompagné d'un bar (26m²) et d'un espace toilette. A l'extérieur une deuxième salle de réception (80m²) avec un espace toilette accompagnée d'une terrasse en bord de Marne sous des platanes majestueux. L'arrimage de péniches est possible pour une arrivée tout aussi majestueuse. Elle possède une cuisine spacieuse et très bien équipée (50m²). Les 3 salles peuvent servir 180 couverts par service.

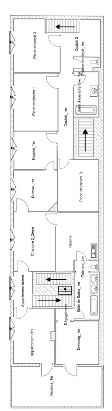
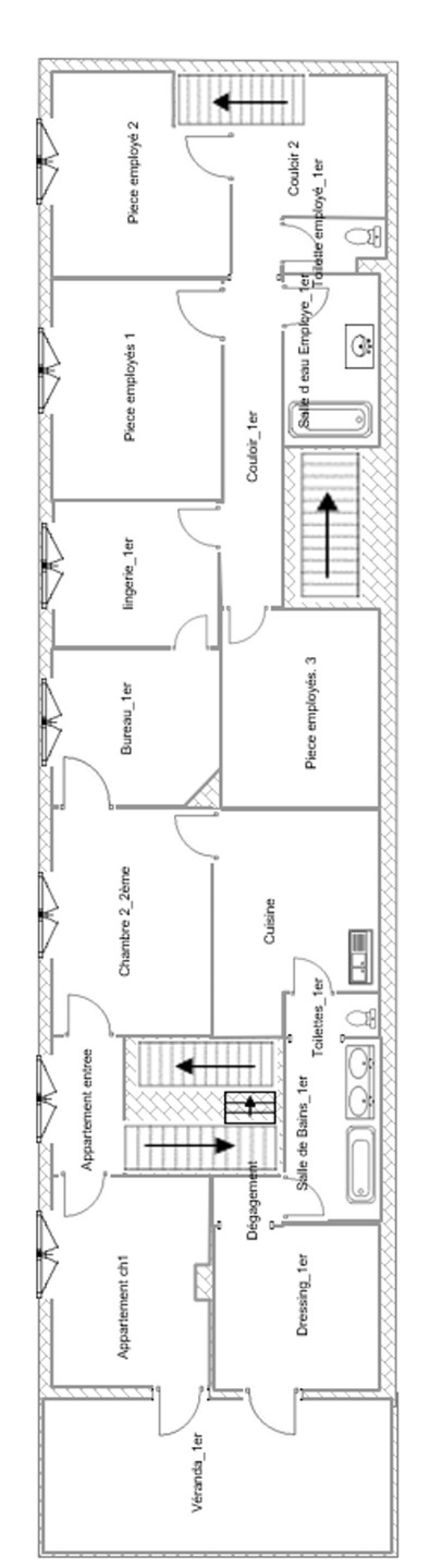
La partie appartement privative (87 m²), avec un accès indépendant, se compose d'une chambre avec un dressing donnant sur une véranda et une terrasse, d'une deuxième chambre, une salle de bain, une cuisine et un bureau.

La dernière partie composée de 6 chambres pour le personnel ainsi qu'une partie non exploitée peut faire l'objet de travaux pour être aménagée en chambres d'hôtes ou l'ensemble pouvant être transformé en hôtellerie haut de gamme.

Une cave de 28 m² et un garage de 20 m² complète ce bien.

Un domaine prêt à l'exploitation, idéal pour restaurateur, hôtelier ou investisseur

"Un domaine à exploiter, un avenir à bâtir"

02
Plus d'infos

  • Type de transac
    Murs commerciaux
  • Code postal
    94000
  • Surface habitable (m²)
    437 m²
  • Nombre de niveaux
    3
  • Vue
    Marne
  • Superficie (m²)
    437

03
Financier

  • Prix de vente HT honoraires inclus
    2 625 000 €
  • Les honoraires d'agence seront intégralement à la charge du vendeur
     
  • Chiffre d'affaires
  • EBE

04
Plus de détails

  • Mode de chauffage
    Gaz de ville
  • Type de chauffage
    TRAD_TYPE_CHAUFF_CHAUDIERE
  • Format de chauffage
    Individuel
  • Année de construction
    1948

05
Copropriété

  • Copropriété
    NON
  • plan de sauvegarde
    NON

06
Bilan énergétique

DPE GES
Nos outils
Intéressé(e)
par ce bien